

郵箱:apyingan@qq.com
手機:18832882088
電話:0318-7171525
傳真:0318-7172526
地址:河北省安平縣中營開發區
常見問題
發布時間:2013-03-15 07:22:10 來源:安平正辰網欄 訪問:11377次

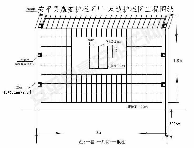
是一種價格便宜,安裝方便的產品,因此受到了廣大客戶的青睞
產品規格:
(1). 浸塑絲經 3.0mm--5.0mm;
(2). 網孔 75mm x 150mm 雙邊絲;
(3). 更大尺寸:2500mm x 3000mm;
(4). 立柱: 48mm x 2mm鋼管PE浸塑處理;
(5). 邊框: 無邊框;
(6). 附件: 防雨帽、連接件
產品優點:
1. 網格結構簡練 美觀實用;
2. 便于運輸,安裝不受地形起伏限制;
3. 特別是對于山地、坡地、多彎地帶適應性極強;
4.價格中等偏低,適合大面積采用。
使用范圍:
鐵路封閉網、高速公路封閉網、場區圍欄、小區護欄、各種體育場、工礦學校等。
本文由專業的護欄網廠家"正辰網欄"發布,如若轉載請注明出處
上一篇:公路護欄網的施工施工方式
下一篇:高速公路基礎安全設施建設之一
熱銷產品
相關文章
最新發布